ARCHITEKTURPORTFOLIO // NICOLE LAETSCH M.SC.
ÜBER MICH
AKTUELLES
ENTWÜRFE
BILDERGALERIE
WEITERE PROJEKTE
DOWNLOAD
KONTAKT
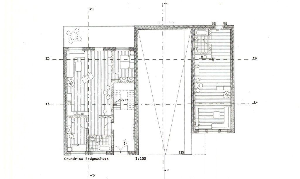
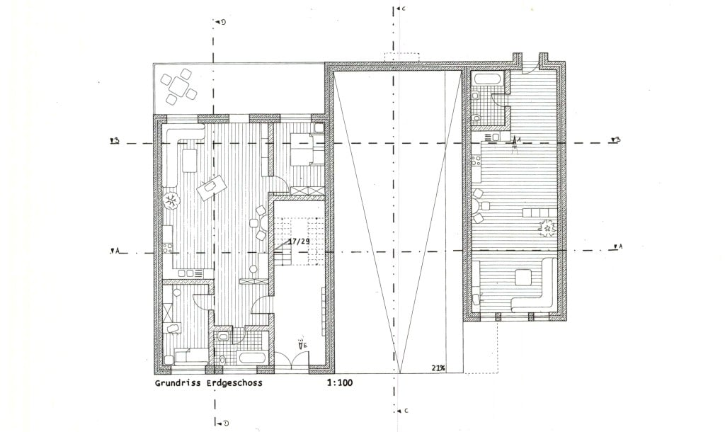
Wohnen in Cottbus
Grundrisse
Wohngebäude
Modellfotos
Ganztagsschule Leipzig
Neues Kunstarchiv Beeskow
Unicampus Greifswald
Wohnen in Cottbus